● TOP PAGE  ● お申し込み、お問い合わせ  ● ファーム青葉 横浜・青葉  ● 栽培収穫体験ファームとは  ● Q&A  ● 農作業ノート
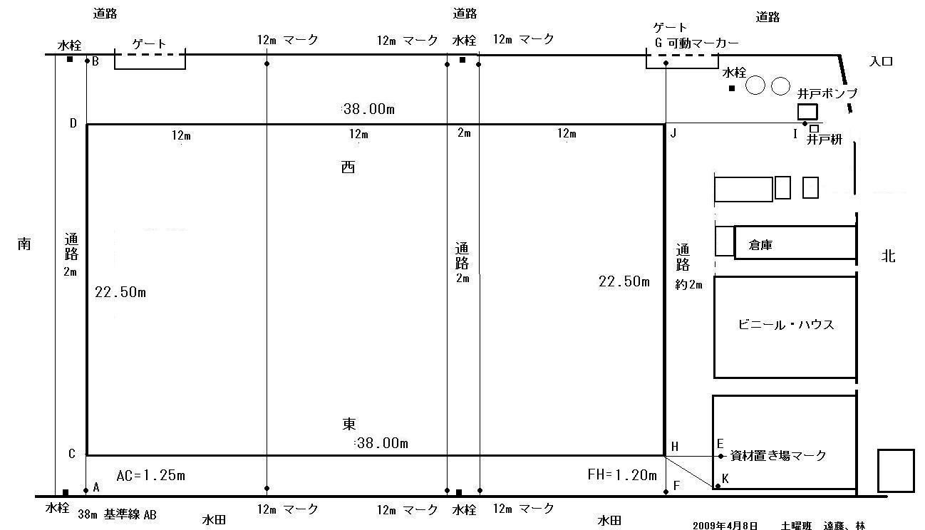
農園の基礎測量、区画設計